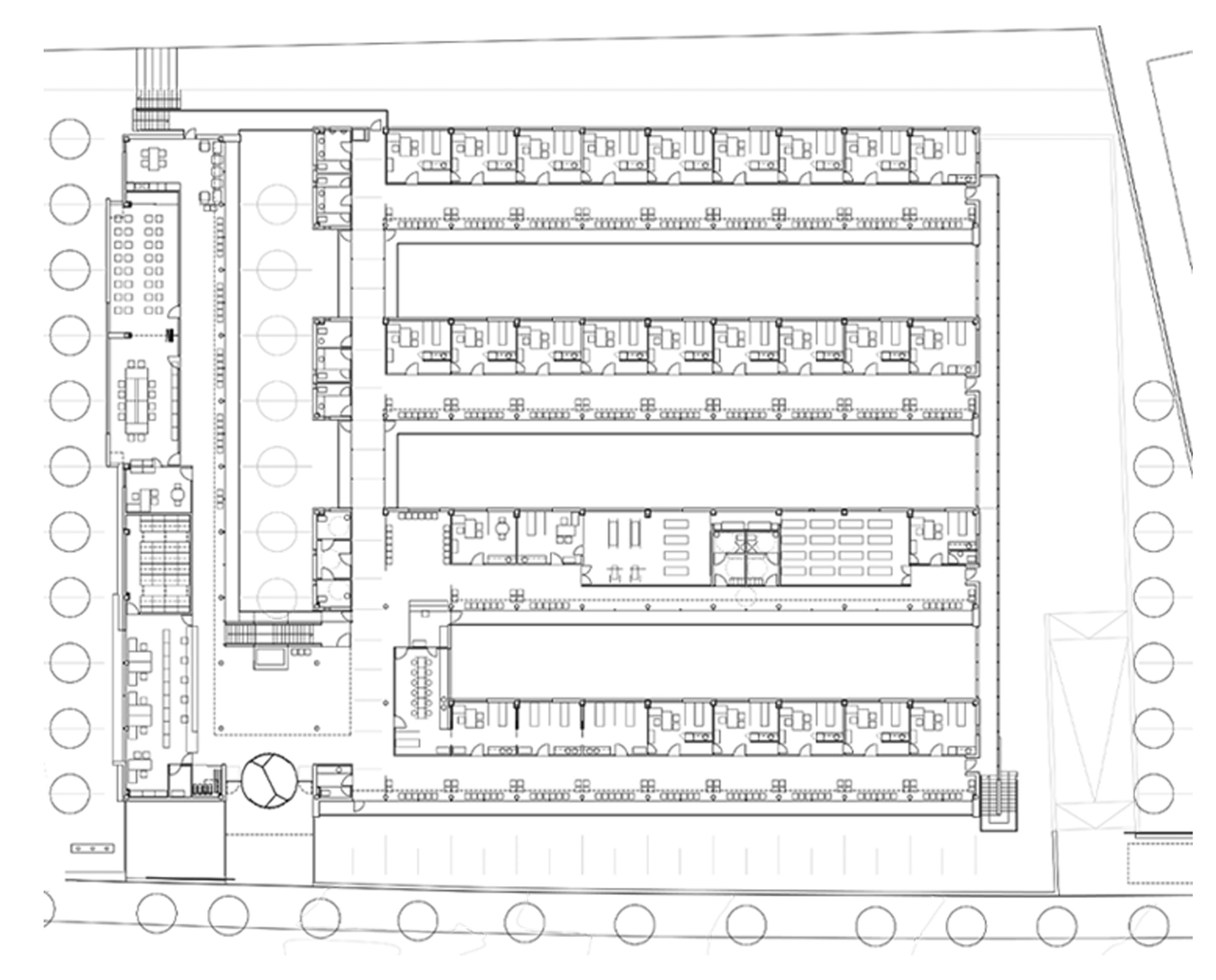
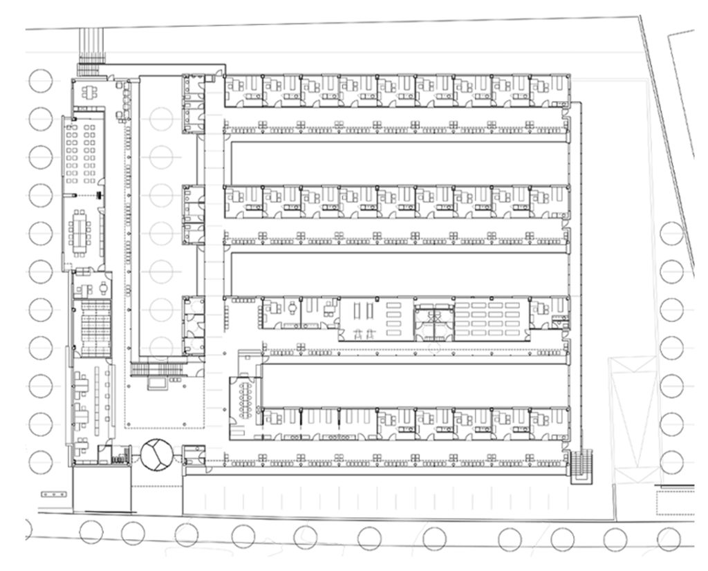
Centro de Salud Boadilla

Galería de imágenes

Otras zonas de España donde realizamos servicios

Experiencia y compromiso

Despreocúpate, nuestro estudio de arquitectura se encarga de todo

Desde el primer boceto hasta la entrega final, nuestro equipo de arquitectos se implica en cada fase del proyecto.
Analizamos tus necesidades, optimizamos los espacios y te guiamos con claridad para que disfrutes de un proceso tranquilo y sin complicaciones.
Tanto si se trata de una vivienda particular como de un local comercial, te ayudamos a hacerlo realidad, con rigor, experiencia y cercanía.
© Minabeades 2025. All Rights Reserved.
Aviso legal y política de cookies